Assendelft – Pitrus 50 – Hoofdfoto
Assendelft – Pitrus 50 – Foto
Assendelft – Pitrus 50 – Foto 2
Assendelft – Pitrus 50 – Foto 3
Assendelft – Pitrus 50 – Foto 4
Assendelft – Pitrus 50 – Foto 5
  • Woonoppervlakte 157 m2
  • Perceeloppervlakte 298 m2
  • Inhoud 578 m3
  • Aantal verdiepingen 3
  • Aantal slaapkamers 5
  • Energielabel A+++
  • Type woning Eengezinswoning, Twee onder één kapwoning

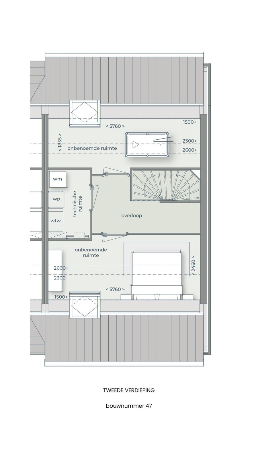
Pitrus 50 in Assendelft is onderdeel van nieuwbouwproject De Velden in Kreekrijk Assendelft. Het betreft bouwnummer 47.

Welkom in De Velden. Waar authentieke Zaanse architectuur samenkomt met een groene, waterrijke omgeving. Hier geniet u van het beste van twee werelden: de ruimte en rust van boomrijke lanen en waterpartijen, gecombineerd met de gezelligheid van knusse woonhofjes. Een plek waar buren elkaar ontmoeten en waar het gevoel van vrijheid en verbondenheid perfect in balans is.

De ontwikkeling van Kreekrijk is in volle gang, en de structuur van de wijk wordt al goed zichtbaar. Wat u kunt verwachten? Een ruim opgezette, groene woonwijk met waterpartijen, doorkijkjes naar het omliggende landschap en een zorgvuldig ontworpen indeling, Kreekrijk bestaat uit vier woongebieden. De wijk is ontworpen met oog voor de natuur, waardoor water en groen een prominente rol spelen in het straatbeeld.

Twee-onder-een-kapwoningen
Word wakker met het geluid van fluitende vogels en geniet van lange zomeravonden aan het water. Hier woont u midden in het groen, in Zaanse charme.

Stelt u zich eens voor: een prachtig thuis in een sfeervolle, groene omgeving, waar de charme van Zaanse architectuur en modern wooncomfort samenkomen. Deze twee-onder-een-kapwoningen bieden het beste van twee werelden: een knusse hofjesstructuur waar buren elkaar ontmoeten of een unieke ligging aan het water met een (optioneel) eigen terras om van het buitenleven te genieten.

Kiest u voor de elegantie van een langskap of spreekt de uitstraling van een dwarskap u meer aan? Wat uw voorkeur ook is, elke woning ademt de karakteristieke stijl van de Zaanstreek, met fraaie geveldetails, warme kleuren en authentieke daklijnen. Grote raampartijen zorgen voor een lichte, open sfeer, terwijl de royale tuin of het terras aan het water de perfecte plek biedt om te ontspannen.

Hier woont u in een buurt met karakter en rust, omgeven door water en groen, maar met alle voorzieningen binnen handbereik. Een plek waar kinderen veilig spelen en u elke dag het vakantiegevoel ervaart.

Kenmerken
• Twee-onder-een-kapwoningen met klassieke zij-entree
• Ruime eetkeuken
• Woonkamer
• Op de eerste verdieping drie slaapkamers, badkamer en separaat tweede toilet
• Tweede verdieping met twee slaapkamers
• De woning is voorzien van vloerverwarming
• Gasloos wonen met een bodemwarmtepomp
• Triple beglazing
• De bodemwarmtepomp zorgt naast warmte, ook voor passieve koeling
• Twee parkeerplaatsen op eigen terrein
• Optionele mogelijkheden als:
– Aangebouwde berging, eventueel te betrekken bij de hal en woonkamer
– Hefschuifpui in de achtergevel
– Dakramen
– Samenvoegen van slaapkamers op de eerste verdieping
– Inloopkast in slaapkamer 1
– Separaat toilet op de eerste verdieping
– Creëren van een inloopkast op de eerste verdieping
– Een extra badkamer op de tweede verdieping
– Zonnepanelen
– Dakramen

Interesse? Kijk voor meer informatie en de inschrijving op de projectwebsite DeVeldenKreekrijk.nl

Interesse?

Maak een afspraak Stel je vraag Kan ik dit huis betalen?

Kenmerken

Overdracht

Status
Verkocht onder voorbehoud
Koopprijs
€ 695.000,- v.o.n.

Bouwvorm

Objecttype
Woonhuis
Soort
Eengezinswoning
Type
Twee onder één kapwoning
Bouwjaar
2026
Bouwvorm
Nieuwbouw

Indeling

Woonoppervlakte
157 m2
Perceel oppervlakte
298 m2
Inhoud
578 m3
Aantal kamers
7
Aantal slaapkamers
5

Energie

Isolatievormen
Volledig geïsoleerd
Soorten warm water
Aardwarmte
Soorten verwarming
Warmtepomp

Buitenruimte

Tuintypen
Achtertuin, Voortuin, Zijtuin
Type
Achtertuin
Achterom
Nee
Kwaliteit
Aan te leggen

Bergruimte

Soort
Vrijstaand hout

Parkeergelegenheid

Soorten
Parkeerplaats, Geen garage

Overig

Permanente bewoning
Ja
Waardering
Uitstekend
Waardering
Uitstekend

Voorzieningen

Voorzieningen
Mechanische ventilatie

Kaart

Streetview

In de buurt

Group Created with Sketch.

Neem contact met ons op over Pitrus 50, Assendelft

Kantoor: Makelaar Amsterdam

Contact gegevens

Andere kantoren: Krommenie, Zaandam, Amstelveen